Réf : MVST10007024
Sous-compromis
Exclusif

Strasbourg (67100) Studio de 22,41 m² avec balcon - Neudorf

1 Pièce(s)
1 Salle(s) de bain

Les infos Essentielles

Caractéristiques Valeurs
Code postal 67100
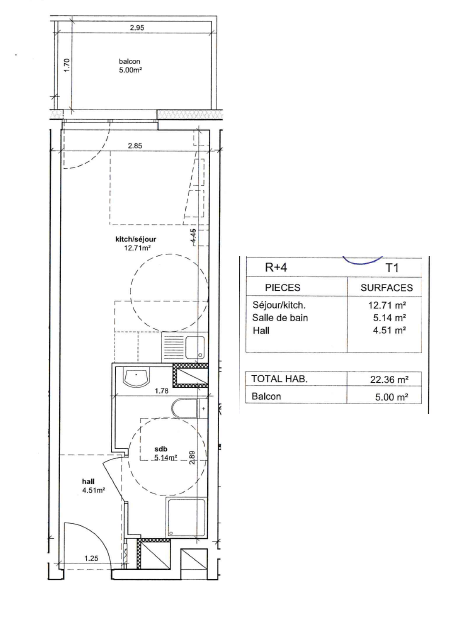
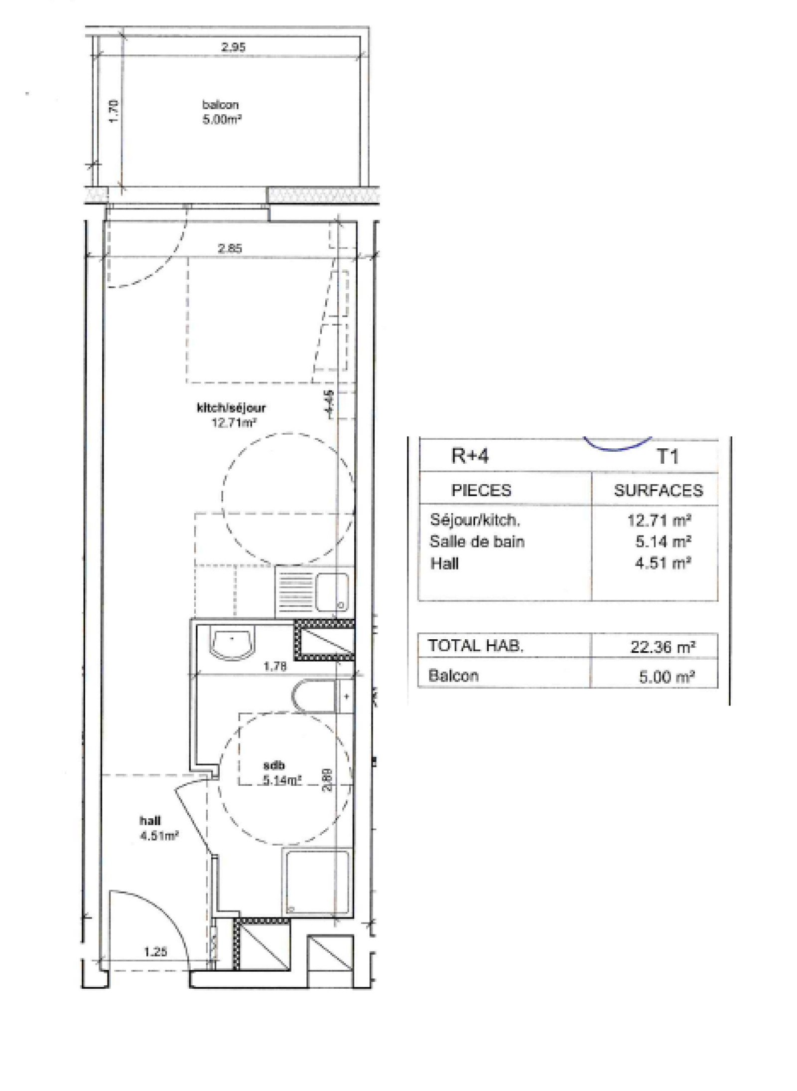
Surface habitable (m²) 22,41 m²
Surface loi Carrez (m²) 22,36 m²
Nombre de pièces 1
Caractéristiques Valeurs
Etage 4
Nombre de niveaux 1
Ascenseur OUI
Nb de salle de bains 1
Caractéristiques Valeurs
Nb de salle d'eau 1
Mode de chauffage Gaz
Type de chauffage Autre
Format de chauffage Collectif
Caractéristiques Valeurs
Balcon OUI
Année de construction 2014

Dans une impasse calme et arborée, découvrez ce studio lumineux de 22,41 m², situé au 4eme étage avec ascenseur d'une copropriété bien entretenue. Idéal pour un investissement locatif ou un premier achat.

Description du bien :

- Pièce de vie agréable avec cuisine ouverte et équipée (meubles hauts et bas, évier, plaques de cuisson, four
- Salle d’eau fonctionnelle avec douche, lavabo, miroir avec luminaire
- Balcon sans vis-à-vis, offrant une vue dégagée et un bel espace extérieur
- Chauffage collectif au gaz
- DPE : C
- Résidence de 2014
- Local à vélos sécurisé dans la résidence

Localisation :

- À seulement 4 minutes à pied du tram C
- Environ 10 minutes de l’Esplanade
- Environnement calme, dans une impasse arborée


Les informations sur les risques auxquels ce bien est exposé sont disponibles sur le site Géorisques

Les infos Financières

Prix de vente honoraires TTC inclus 100 000 €
Prix de vente honoraires TTC exclus 92 000 €
Honoraires TTC à la charge acquéreur 8,7 %
Charges 47 €

Nos outils

Imprimer

Localisation Du bien

  • Commerces et santé
  • Loisirs
  • Ecoles
  • Transports
  • Pratique

Les infos Energetiques

DPE GES

Montant estimé des dépenses annuelles d'énergie pour un usage standard est compris entre 250 € et 400 € . Prix moyens des énergies indexés sur les années 2021, 2022 et 2023 (abonnements compris).

Intéressé(e) par Ce bien ?

* Champ obligatoire

Les informations recueillies sur ce formulaire sont enregistrées dans un fichier informatisé par La Boite Immo agissant comme Sous-traitant du traitement pour la gestion de la clientèle/prospects de l'Agence / du Réseau qui reste Responsable du Traitement de vos Données personnelles.
La base légale du traitement repose sur l’intérêt légitime de l'Agence / du Réseau.
Elles sont conservées jusqu'à demande de suppression et sont destinées à l'Agence / au Réseau.
Conformément à la loi « informatique et libertés », vous pouvez exercer votre droit d'accès aux données vous concernant et les faire rectifier en contactant l'Agence / le Réseau.
Si vous estimez, après avoir contacté l'Agence / le Réseau, que vos droits « Informatique et Libertés » ne sont pas respectés, vous pouvez adresser une réclamation à la CNIL.
Nous vous informons de l’existence de la liste d'opposition au démarchage téléphonique « Bloctel », sur laquelle vous pouvez vous inscrire ici : https://www.bloctel.gouv.fr 
Dans le cadre de la protection des Données personnelles, nous vous invitons à ne pas inscrire de Données sensibles dans le champ de saisie libre
Ce site est protégé par reCAPTCHA, les Politiques de Confidentialité et les Conditions d'Utilisation de Google s'appliquent.
contacter l'agence
Ces biens peuvent aussi vous intéresser
Sous-compromis
Exclusif
Zehnacker (67310)

À vendre – Terrain à bâtir de 11 ares à Zehnacker

Nous suivre sur